

























Vaunumökki S
Osamaksulla alk. 292 € / kk
Yhdessä erässä 19 972 – 31 925 €
(varustelutasosta riippuen)
Lapelland vaunumökki S on vaivattomin ja helpoin tapa lisämajoitukseen.
Lapelland vaunumökki S on vaivattomin ja helpoin tapa lisämajoitukseen.
Liikuteltava
Pidä paikallaan tai vie mukanasi uusiin elämyksiin. Erikoisjämerä alusta toimii kivijalkana.
Edullinen
Ei budjetin ylityksiä, yllätyskuluja, maatöitä, lupaprosessia, kiinteistöveroja eikä tonttia.
Käyttövalmis
Vaunumökit ja -saunat toimitetaan katsastettuna ja käyttövalmiina yksityiskohtia myöten.
Talvilämmin
Lämpimiä Lapellandeja on ympärivuotisessa majoituskäytössä ylintä Lappia myöden.
Valitse teille sopivin varustelu
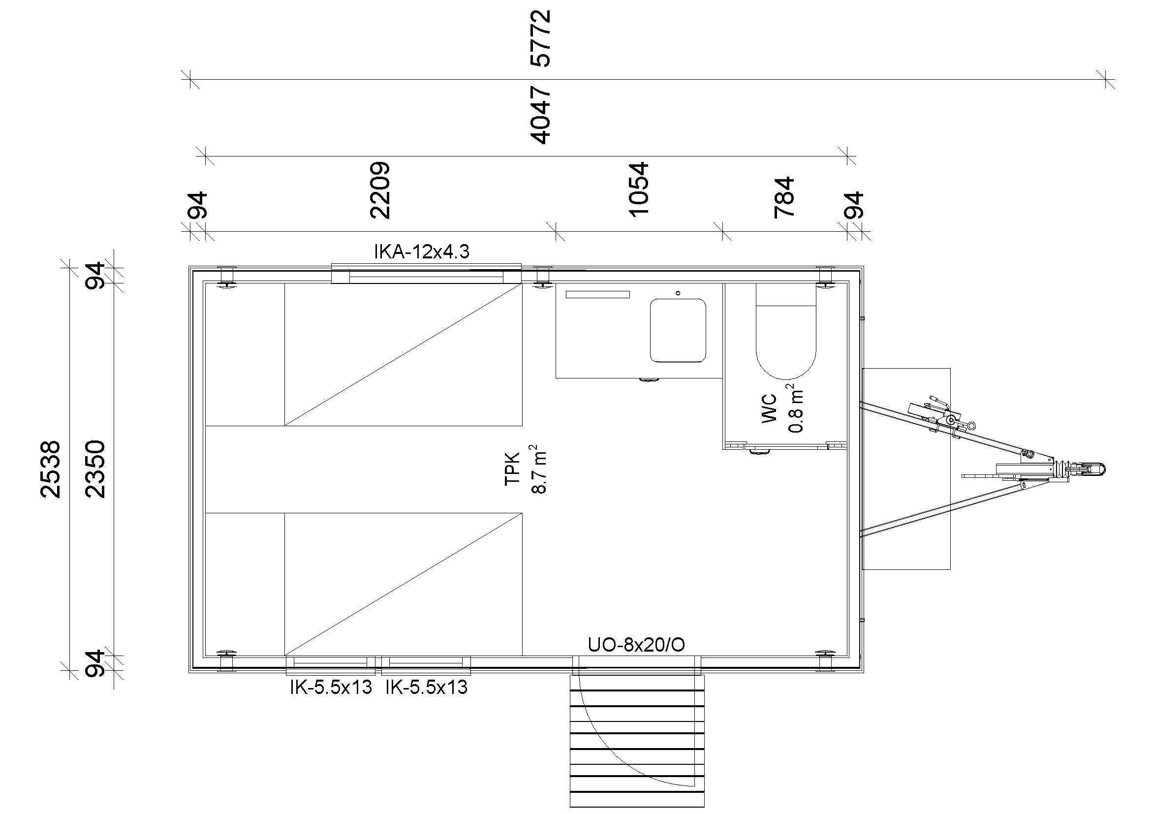
4,3m pitkä ja 2,6m leveä – Vaunumökki S on täydellinen vierasmökki.
🖤 BLACK NOVEMBER -ERIKOISTARJOUS!
5 nopeimmalle hurja 3000 € alennus vaunumökistä!
Erikoistarjous ei koske vaunumökki S -mallia.
Minikeittiöllä
Monikäyttöinen pieni vaunumökki taipuu myös moneen muuhun. Esimerkiksi parturikampaamoksi,
hierontatilaksi ja toimistotilaksi.
Kasetti WC:llä
Parhaat mökkiunelmat syntyy kotisohvalla
Ekologinen
Puurakenteinen Lapelland ei aiheuta rakennustyömaata, eikä riko ympäristöä.
Kotimainen
Olemme osa Salvos Finland konsernia, vakavarainen perheyhtiö ja Suomen suurin vaunuvalmistaja.
Omavarainen
Vaunumökit ja saunat voidaan varustella aurinkovoimalla
ja caravan-tekniikalla.
Turvallinen
Valmistamme kestävälaatuiset mökit ja saunat säältä suojassa, modernissa tehtaassamme Pyhännällä.
Perehdy yksityiskohtiin
VAUNUMÖKKI S
– Kattomuoto pulpettikatto
– Valot ja vilkut
– Sinkitty jarrullinen alusta, nokkapyörä, kulmissa veivattavat tukijalat, veivi ja aisalukko
– Keulalaatikko, saranoitu kansi
– Seinärunko 42*66 mm
– Finnfoam-eristys 70 mm lattiassa ja 100 mm katossa
– Eristysvilla 50 mm ja höyrynsulkukangas seinissä
– Ulkoverhouspaneeli 14×120 mm
– Kattorakenteet, sandwhich-kattorakenne musta, sisäkatto kuusipaneeli 14×120 valitulla värillä, reunapellit tippanokalla
– Sisäverhous kuusipaneeli 14×120 mm
– Ponttivinyylilattia
– Eristetty ulko-ovi LAO 2k selektiivi, musta, sisältää lukon
– Ovihaka
– Lämpöikkunat 2k karkaistu, 5,5×13 2 kpl, avattava tuuletusikkuna 12×4,3 1 kpl
– Verhokisko kiinteiden ikkunoiden yläpuolelle
– Ovien ja ikkunoiden pielilaudat ja smyygit
– Ilmanvaihtoventtiilit
– Rimoitukset 50*50 mm kolmiorimaa
– Roikka, pistorasiat, 1 kpl 650 W sähköpatteri, 1 kpl seinälämpöpuhallin, kytkimet, mittauspöytäkirja
– Jauhesammutin
– PalovaroitiN
LISÄVARUSTUS
– Nousuporras
– Lisärimoitus
– Arctic-paneeli (leveämpi seinäpaneeli)
– Aurinkoenergiapaketti
– Sisä- ja ulkovalaistus
– Antennipaketti
– Ilmalämpöpumppu
– Diesel-lämmitin
– WC-kalusteet (useita vaihtoehtoja)
– Keittiöpaketti (useita vaihtoehtoja)
– Sänky (useita vaihtoehtoja)
– Hyttysverkko avattavaan ikkunaan
– Pimennysverhot
– Mukavuus lattialämmitys
Miksi sauna-, mökki- ja majoitusvaunut ovat renkailla?
Valmistamme mökit ja saunat jämerän kivijalkaa vastaavan alustan päälle kiistattomien etujen vuoksi. Liikuteltavuus mahdollistaa käytön eri paikoissa. Esimerkiksi talvella kotipihalla ja kesällä mökkirannassa. Vaununa mökki- tai sauna ei vaadi erillisiä pohjatöitä tai perustuksia vaan se on käyttövalmis jo saapuessaan. Jos elämäntilanteesi muuttuu ja asuinpaikka vaihtuu, sauna tai mökki seuraa omistajaansa tai voidaan myydä eteenpäin. Lapelland -vaunut säilyttävät arvonsa poikkeuksellisen hyvin.
Liikuteltavana ratkaisuna mökki- tai sauna voidaan toimittaa nopeasti ja kustannustehokkaasti ostajan antamaan osoitteeseen, täysin valmiina, jolloin jo ostotilanteessa tiedät tarkalleen koko hankkeen kulut. Kaikki vaunumme rekisteröidään, jolloin ne voidaan vakuuttaa ja rahoittaa normaalin autorahoituksen tavoin turvallisesti ja edullisesti.
Miten ja kuinka usein vaunumökkiä tai -saunaa tulee huoltaa?
Vaunumökit ovat käytännössä huoltovapaita. Riittää, että huolehdit huoltomaalauksesta, kuten muissakin piharakennuksissa. Vaunumökit on suunniteltu kestämään Suomen vaihtelevat sääolosuhteet. Kestävät ja hengittävät materiaalit takaavat pitkän käyttöiän, ja maasta irrallaan oleva rakenne varmistaa hyvän ilmanvaihdon.
Onko saunavaunuissa hyvät löylyt?
Sauna ja Mökkivaunujen ”irti maasta” oleva rakenne mahdollistaa tehokkaan ilmanvaihdon, niin asuntopuolelle, kuin saunaankin. Hyvän saunan tunnistaa oikein valituista materiaaleista, sopivasta laudekorkeudesta ja riittävästä ilmankierrosta. Tiedämme, mitä hyvä sauna ”vaatii”. Konsernissamme on kokemus lähes 10 000 saunan valmistamisesta.
Voiko sauna- tai mökkivaunun jättää talveksi kylmilleen?
Kyllä voi. Kaikki materiaalit on valittu sisälle ja ulos siten, että vaunun voi jättää vaikka kokonaan kylmäksi talven ajaksi. Tehokas ilmanvaihto (painovoimainen) kuivattaa ilmaa sisältä yhdessä tulipesän kanssa. Lujat rakenteet myös kestävät talven lumikuorman.
Montako vuotta sauna- tai mökkivaunu kestää käytössä?
Kaikki rakenneratkaisumme ovat pitkän kokemuksen ja tuotekehityksen aikaansaannos. Vaunujen tuulettuvat rakenteet huoltavat itse itsensä. Mökki- ja saunavaunun käyttöikä on vastaava, mitä tavallisella kiinteällä rakennuksella.
Saako saunan vedet valua suoraan maahan?
Termi ”kantovesi” on vakiintunut tarkoittamaan vedenkäyttöä, jossa käytettävä vesi kannetaan ämpärillä käyttökohteeseen, esim. keittiöön tai saunaan. Tällöin käytetyn veden määrä on tyypillisesti vähäinen. ”Muut kuin vesikäymälän jätevedet voidaan johtaa puhdistamatta maahan, jos niiden määrä on vähäinen eikä niistä aiheudu ympäristön pilaantumisen vaaraa.” (Ympäristönsuojelulaki 155 pykälän 2 momentti).
Pienetkään jätevesimäärät eivät kuitenkaan saa aiheuttaa ympäristön pilaantumista, eikä jätevettä tule johtaa suoraan vesistöön tai juomavesikaivon läheisyyteen. Jätevettä ei tule myöskään kaataa rakennusten sisälle tai välittömään läheisyyteen, jolloin rakenteet voivat kastua ja siten lisätä home- ja kosteusvaurioiden riskiä.
Käytännössä saunaan kannettu vesi saa valua suoraan maahan. Toki on suositeltavaa, että pesuvesi ohjataan esim. kivikaivoon tai imeytyskuoppaan.
Mikäli käyttövesi tulee sisälle paineella (pumppaus), voi veden määrä olla edelleen vähäinen. Asuinkiinteistön jätevesien vähäisyyttä voidaan arvioida kiinteistön varustelutason, asumismäärän ja vedenkäytön avulla. Rajatapaukset sen suhteen, milloin jätevesien määrä on vähäinen, ratkaisee kunnan ympäristönsuojeluviran-omainen.
Jäteveden laadusta ja määrästä riippuen valitaan sopiva ratkaisu. Rasvaiset keittiövedet vaativat usein saostussäiliökäsittelyn ennen imeytystä. WC-vesien käsittelyyn imeytyskuoppa tai –kaivo ei koskaan ole riittävä käsittelymenetelmä.
Tarvitaanko saunoille tai mökkivaunuille rakennuslupa tai ilmoitusmenettely?
Lähtökohtaisesti Lapellandin mökki-, majoitus- ja saunavaunuja koskettavat samat määräykset ja säännöt kuin asuntovaunuja. Mikäli saat tontilla pitää ja käyttää asuntovaunua, myös Lapelland vaunun käyttö on sallittua.
Mökki- ja majoitusvaunut voidaan varustella omavaraisiksi tai esim. vesi- ja viemäriverkkoon liitettäviksi malleiksi. Mikäli mökkivaunu kytketään talotekniikkaan (vesi- ja viemäriverkkoon), voidaan se joissakin tapauksissa tulkita kiinteäksi rakennelmaksi, jolloin tarkistus omasta kunnasta on paikallaan. Tähänkin vaikuttaa olennaisesti vaunun käyttö ja pitkäaikainen pysyvyys.
Miksi ostaisin saunavaunun tai mökkivaunun?
Lapelland on ainutlaatuisen vaivaton ja helppo tapa toteuttaa unelma omasta pihasaunasta tai mökistä. Hankkimalla sauna- tai mökkivaunun pääset pienillä kustannuksilla heti käyttämään tuotetta ja nauttimaan elämästä.
Millaisella autolla saan vetää vaunua?
Kaikkia Lapelland vaunuja saa henkilöautolla. Vaunu painosta riippuen vaaditaan myös BE-ajokortti. Lapelland vaunujen kokonaispainot ovat 750kg ja 3500kg välillä. Vetoautolla pitää olla riittävän suuri jarrullinen vetomassa. Mikäli sinulla ei ole oikeanlaista vetoautoa, voi tilata vaunun kuljetuksen ja paikalleen laiton perille Lapellandilta.
Tarvitseeko vaunua katsastaa ja rekisteröidä?
Kaikki mallimme tulevat asiakkaalle valmiiksi rekisteröitynä ja tuotteitamme ei tarvitse koskaan katsastaa.
Miten vakuutan vaunun?
Normaalin ajoneuvon tapaan. Voit tehdä vakuutuksen ja omistajanvaihdon Trafin sivuilla netissä, tai lähimmällä katsastusasemalla tai vakuutusyhtiössäsi. Tuotteillemme saa myös kaskovakuutuksen tarvittaessa. Vaunun voi myös normaaliin tapaan laittaa seisontavakuutukseen, jos ette käytä sitä liikenteessä. Tällöin siitä ei tule kuluja.
Kysy lisää asiakaspalvelustamme tai tehtaanedustajalta! Vastaamme mielellämme kaikkiin kysymyksiisi!







